Technical details


Introduction

Innovative VELUX solution for bringing daylight and ventilation into a room under a flat roof.


Roof pitch
Between 0 and 15 degrees

Features
  • Entire window achieves a low U-value of 1.4W/m2K.
  • Excellent sound insulation from rain and hail.
  • Polycarbonate cover designed simply to protect the double glazed unit below from rain and snow.
  • Polycarbonate cover available in clear or opaque.
  • Double glazed unit has laminated inner pane for additional safety.
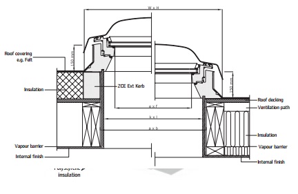
  • Kerb and sash made of extruded hard PVC profiles.
  • Available in 9 sizes with kerb height of 150mm.
  • Available fixed or INTEGRA® electrically operated with hidden motor (INTEGRA® window provides ventilation when the window is open).

Operation
Remote controlled IO and rain sensor closes window automatically with INTEGRA® electric version.

Maintenance

The pane should be cleaned with a soft, clean, lint-free cloth or non-abrasive sponge. The rest of the window can be cleaned with ordinary household cleaners. 


Guarantee
  • 10 year VELUX guarantee on windows
  • 3 year guarantee for the electrical items, blinds, shutters and awnings

Pane
(--73) Float outer pane with low-e coating on the external pane and laminated iinner pane recommended by VELUX for additional safety.

Profile

Variants
Polycarbonate cover variants:
  • Clear or opaque

Blinds
Interior sun screening
  • FMG electric operated pleated blind
  • FMK electric operated light dimming pleated blind
External sun screening
  • MSG solar awning

Accessories recommended by VELUX
  • ZCE 0015 – Extension kerb 150mm
  • ZZZ 210 – Frame fixing kit for roof material

Size chart

Measurements (mm)
 Size Exterior Frame Roof Opening  Visible Glass Lining Rebate 
  W x H  a x b e x f k x l
060060   70 x 80 780 x 780 435 x 435 559 x 559 
060090  780 x 1080
600 x 900
435 x 735  559 x 859 
080080   980 x 980 800 x 800 635 x 635 759 x 759
090090  1080 x 1080 900 x 900 735 x 735 859 x 859 
090120   1080 x 1380 900 x 1200 735 x 1035 859 x 1159 
100100  1180 x 1180  1000 x 1000 835 x 835 959 x 959
100150  1180 x 1680  1000 x 1500 835 x 1335 959 x 1459
120120  1380 x 1380  1200 x 1200 1035 x 1035 1159 x 1159
150150 1680 x 1680  1500 x 1500 1335 x 1335 1459 x 1459
Cross section/
measurements (mm)
Technical data
Size  Ventilation (m2)
Effective daylight area (m2
060060  0.12 0.19
060090  0.14  0.32
080080  0.16  0.40 
090090  0.18  0.54 
090120  0.20  0.76 
100100  0.20  0.70 
100150  0.23  1.18 
120120  0.24  1.07 
150150  0.30  1.86 


 Pane variant Clear Opaque EN/ISO standard
Thermal transmittance, Uw[W/m2K]
1.4 1.4 EN ISO 12567-2
Thermal transmittance for Dome
0.72 0.72 EN 1873
Sound insulation, Rw[dB]
37 37 EN ISO 10140-2 
Rain noise sound intensity level LIA[dB]
 50 50 EN ISO 140-18
Air permeability
 Class 4 Class 4 EN 12153 
Luminous transmittance, τD65   0.69 0.21   EN 1873
Total solar energy transmittance, g   0.52 0.20  EN 410
Burglary Resistance   Class 2 Class 2 EN 1627