Introduction

The VELUX roof terrace system can be installed in roof pitches between 35° and 53°. The system offers the possibility of creating a roof terrace with access from the building. The number of units installed is according to individual wishes. VELUX do not supply the exterior terrace weathering or railing elements.


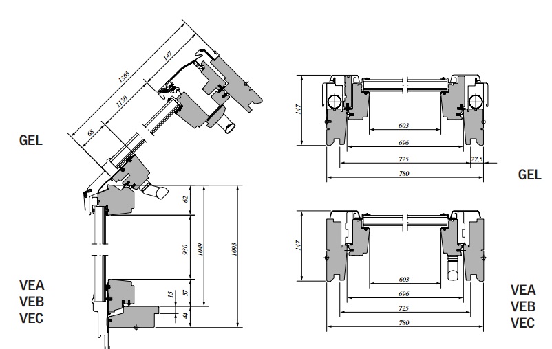
The system consists of:

GEL: The top-hung top element opens 45°, barrel bolt for locking the sash in cleaning position, ventilation flap with air filter, control bar.

VEA: Side-hung bottom element opens 90° and is hinged on the left hand side seen from the outside.

VEB: Side-hung bottom element opens 90° and is hinged on the right hand side seen from the outside.

VEC: Fixed bottom element.

The appropriate flashing and the EBY adjustable support trimmer are also supplied as part of the system.


Roof pitch

35o - 53o


Operation

GEL can be opened by means of a handle at the bottom sash. The window opens up to 45°.

The control bar on GEL is used for operating the ventilation flap or for fully rotating the sash for cleaning the exterior pane.

The bottom element is opened by means of a handle at the side sash. When both the top and the bottom element are open, there is free access to the roof terrace.


Glazing
Glazing unit  Description
(--65G) glazing  Triple glazing, lowest U-value and noise reduction. Toughened outer pane with easy-to-clean and anti-dew coating, 3mm middle pane and laminated inner pane for additional safety.

Maintenance
The pane should be cleaned with a soft, clean, lint-free cloth or non-abrasive sponge. The rest of the window can be cleaned with ordinary household cleaners. The filter can be removed and either washed or replaced.

Guarantee
  • 10 year VELUX guarantee on windows and flashing kits.
  • 3 year guarantee on blinds, shutters, awnings and electrics.

Interior finish

Cladding
NCS standard colour (Grey): S 7500-N nearest RAL standard colour: 7043.

Also available: titanium zinc, copper or coloured aluminium.



Installation products recommended by VELUX
Flashings 
Installation products
 Linings
Combi installation Insulation Collar (BDX)
Underfelt Collar (BFX) includes transverse drainage gutter
Vapour Barrier (BBX)
Linings up to 30 cm roof thickness (LSB)
Linings up to 40 cm roof thickness (LSC)
Linings up to 50 cm roof thickness (LSD)

Blinds, Awnings/Shutters
Interior sunscreening  Awning and shutters  Accessories 
Blackout blind - Manual (DKL)
Roller blind - Manual (RFL)
Flying pleated blind - Manual (FHL)
Venetian blind - Manual (PAL)
Duo blackout blind - Manual (DFD)
Roller shutter - Manual (SHL)
For top element (GEL) only 
Insect screen - Manual (ZIL)

Cross section/
measurements (mm)

Sizes (cm)

Technical Data 

Ventilation and daylight area

Size  Ventilation flap – free area [103mm²]*
Ventilation flap – equivalent area [103mm²]*
Ventilation – open window manual [m²]*
Effective daylight area [m²]
M08  4.3 3.7 0.89 0.69
M35  - - 0.64 0.54

*Measured to EN 13141-1


Technical data

Glazing

 Pane variant --65G  EN/ISO Standard
Thermal transmittance, Uw [W/m2K]
1.0 EN/ISO 12567-2
Thermal transmittance, Ug [W/m2K]
0.5 EN 673
Sound insulation, Rw [dB]
35 EN ISO 10140-2
Air permeability
Class 4 EN 1026
Light transmittance, Tv  0.69 EN 410
Total solar energy transmittance, g  0.50 EN 410